光大安石虹桥中心项目简介
一、背景介绍
光大安石虹桥中心,位于上海长宁区天山西路541号,是2号线淞虹路站地铁上盖项目。项目总建筑面积约170,000平方米,其中办公室可租建筑面积约45,474平方米。作为国家级临空经济示范区的大型城市更新商业体,光大安石虹桥中心不仅区位优势明显,5分钟即达虹桥机场,7分钟到达虹桥火车站,而且其创新的四大主题空间——融美·市集、融·食荟、融·智汇、KOL BOX区,以及六大特色业态——悦美优集、乐活臻选、恬淡时光、美食悠享、人文艺术、潮物尚购,共同打造了一个多元化、充满活力的商业环境。目前,“上海第三座ART PARK大融城”也已入住,进一步丰富了项目的商业内涵。
二、项目参数
- 租金报价:5.5元起/平方米/天
- 项目地址:上海市长宁区天山西路541号
- 占地面积:30,000平方米
- 建筑面积:170,000平方米
- 地上面积:80,000平方米
- 地下面积:90,000平方米
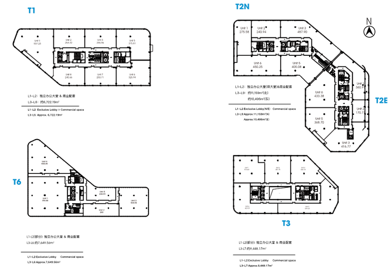
- 整栋面积:T1栋6,722平方米(高6层可整栋);T2栋21,654平方米(高9层);T2E:约10,496平方米(东楼);T2N:约11,159平方米(北楼);T3栋9,448平方米(高7层);T6栋7,469平方米(高6层可整栋)
- 整层面积:T1栋约2,240.73平方米;T2栋约1,750.53平方米(东楼);约1,859.75平方米(北楼);T3栋约2,374.88平方米;T6栋约2,553.12平方米
- 分割面积:170平方米~3,600平方米
- 整层净高:2.8米
- 架空地板:100mm
- 空调系统:VRV分体空调
- 停车位:897个(月租1,000元/个)
- 物业费:28元/平方米/月
- 物业管理:第一太平光控
- 入住企业:长城汽车、盈纬达、光大嘉宝等
三、平面图

四、在租面积、租金与物业费
光大安石虹桥中心提供从170平方米至3,600平方米的灵活租赁面积,租金报价为5.5元起/平方米/天,物业费为28元/平方米/月。具体租金和物业费将根据实际租赁面积、租赁期限及物业服务内容而定。
五、地理位置
项目位于上海长宁区天山西路541号,紧邻地铁2号线淞虹路站,是国家级临空经济示范区的重要组成部分。其优越的地理位置使得企业能够轻松连接城市的各个重要节点,为商务出行提供极大的便利。
六、交通情况
光大安石虹桥中心的交通配套十分完善。项目紧邻地铁2号线淞虹路站,此外,未来还将有26号线(规划中)经过,为企业提供便捷的公共交通网络。自驾车辆也可通过周边道路网络轻松抵达。
七、周围环境
光大安石虹桥中心周边环境优美,商业氛围浓厚。项目不仅自身拥有丰富的商业配套设施,包括四大主题空间和六大特色业态,还毗邻多个知名企业和商业设施,如“上海第三座ART PARK大融城”等,为企业和员工提供多元化的商业和生活选择。
总之,光大安石虹桥中心以其优越的地理位置、创新的商业设计、完善的配套设施和便捷的交通条件,成为上海市长宁区乃至整个临空经济示范区的商务新地标。无论是寻求高品质办公环境的企业,还是追求生活品质的员工,这里都是一个值得考虑的理想选择。